Работаем по всей Беларуси

Емкость 60 м³

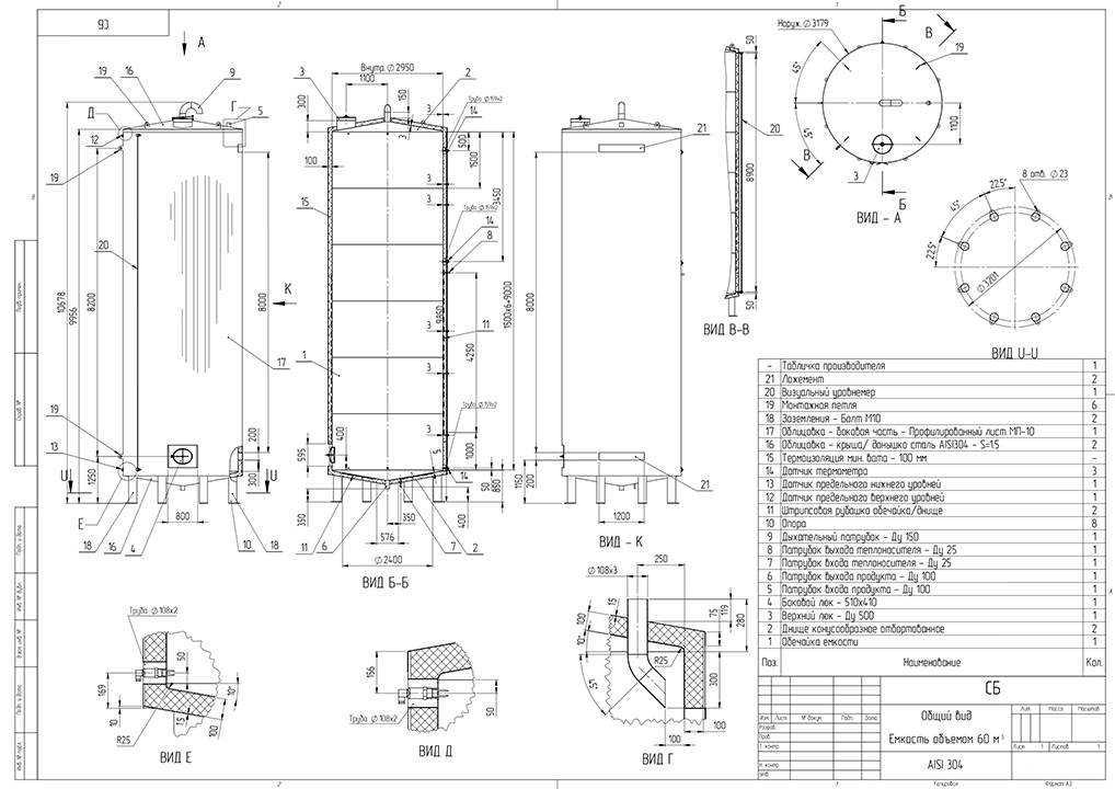
Характеристики
Характеристики:
  • внутренний диаметр емкости –2950 мм,
  • высота рабочей части цилиндра – 9000 мм,
  • общий диаметр – 3100 мм,
  • общая высота – 11010* мм

Крыша и донышко конусообразные, отбортованные, угол 10 градусов.

Толщина стенок:

  • днище – 5 мм,
  • обечайка – 3 мм,
  • крыша – 3 мм. 

Термоизоляция минвата – 100 мм. Облицовка: крыша/ донышко сталь – AISI304, боковая часть – профлист.

Комплектация:
  • люк верхний ДУ500,
  • люк боковой ДУ 410х510,
  • штрипсовая рубашка обогрева боковой и донной части емкости (210 метров, раб. давление 0,5мПа) 
  • визуальный уровнемер,
  • датчики предельных уровней- 2 шт,
  • датчики температуры – 3 шт,
  • патрубки наполнения/опорожнения,
  • разделитель потока – 2 шт,
  • дыхательный патрубок ДУ 150 – 1 шт.

Заземление – 1 шт.

Опоры нержавеющие – 8 шт.

Фото
Чертежи
Возникли вопросы?
Оставьте заявку, и мы с вами свяжемся